Capannone Industriale in vendita a Melegnano

Melegnano (Milano)
Rif.: MELEGNANO

Allende

980.000,00 €

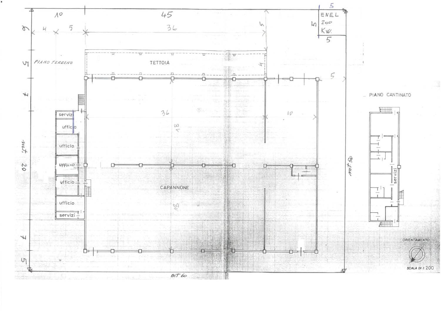
Classe Energetica:2015-F IPE:68.85 Melegnano, nella zona industriale edificata nel quadrante ovest del comune, proponiamo in vendita capannone industriale. La zona in cui è collocato consente rapidi collegamenti con l’autostrada A1, la tangenziale EST Esterna e la binasca che collega all’autostrada A7. La vicinanza con la stazione di Melegnano e la cittadina consente un buon collegamento anche con i treni e i mezzi pubblici. L'immobile ha una superficie complessiva di 1.736 mq ca. , costituita da un’area produttiva di 1.490 mq ca, altezza sotto trave 7 mt, uffici su fronte strada di 123 mq ca con doppi servizi, spogliatoi, ripostigli e locali tecnici al piano seminterrato di 123 mq ca. Il capannone è edificato su un lotto recintato di 3.000 mq ca ed è libero su quattro lati. L’area esterna che lo circonda è di 1.400 mq ca prevalentemente pavimentata con autobloccanti. L’accesso all’area avviene tramite un cancello pedonale posto frontalmente alla zona uffici e un passo carraio, con apertura scorrevole automatizzabile, posto nella via Ferdinando Santi. L’accesso carraio consente l’accesso diretto al capannone tramite un ampio portone posto frontalmente. La zona uffici, così come la zona spogliatoi, è in stato originale e richiede interventi di personalizzazione. Il capannone ha un impianto elettrico recente con illuminazione a led. L’acquisto del capannone può avvenire anche mediante cessione di quote societarie. Immobile proposta in collaborazione con l'agenzia Hb Advisory Devi vendere o affittare un immobile, contattaci per una consulenza. Il nostro team, preparato ed esperto, sarà in grado di fornirvi una consulenza completa per realizzare il vostro obiettivo. Le informazioni contenute nell'annuncio devono ritenersi avere natura meramente indicativa, dovendosene escludere il carattere contrattuale.



camere


4 bagni

1825 mq


2015-F

INFORMAZIONI IMMOBILE
GENERALI
Contratto Vendita
Stato Libero
Prezzo 980.000,00 €
Riferimento MELEGNANO
DESCRIZIONE
Tipologia Capannone Industriale
Piano Piano terra
Mq 1825
Numero locali 9
Numero camere
Numero bagni 4
Cucina Abitabile
Stato manutenzione Abitabile
CLASSIFICAZIONE ENERGETICA
Classe Energetica 2015-F
Prestazione energetica(EPI): 68.85
INFORMAZIONI SULLA COSTRUZIONE
Età dell'immobile 46
Piani totali edificio 1
STRUTTURA ESTERNA
Ascensori
Cantina No
Giardino No
Terrazzi
Box No
STRUTTURA INTERNA
Riscaldamento
Condizionatore

Contatti

Contattaci


Utilizzando questo servizio dichiari di aver letto e accettare l’informativa sulla privacy.

* Campo obbligatorio

Cerco Casa Senago


Piazza del Tricolore, 8
20030 Senago (MI)

Telefono


Tel.02/99057862
Fax.0287370048