Porzione di casa in vendita a Limbiate

Limbiate (Monza e della Brianza)
Rif.: SULIMB

Bellaria, 28

445.000,00 €

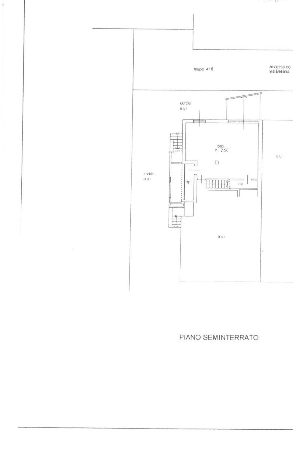
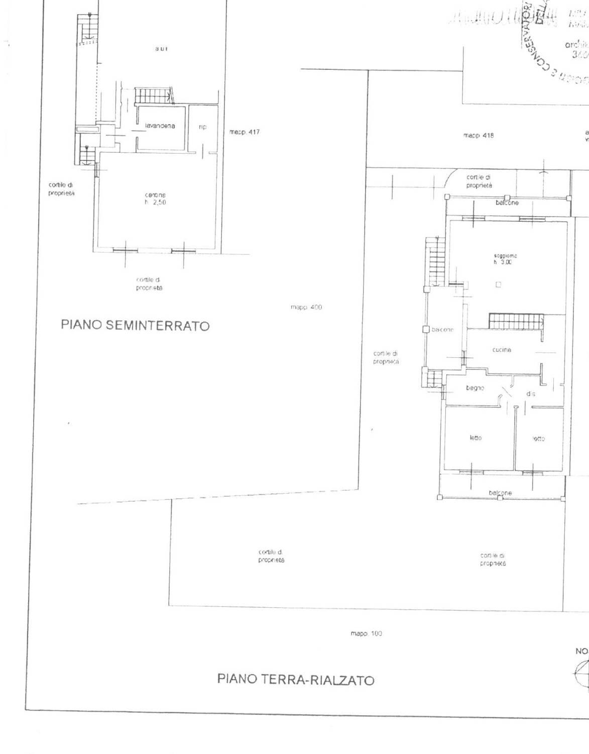
SULIMB: A Limbiate, in zona Ceresolo vicino al parco di villa Mella, in un angolo tranquillo e riservato, proponiamo in vendita questa splendida porzione di bifamiliare che unisce spazi interni eccezionali all'indipendenza e a un generoso spazio esterno. L'immobile si estende su ben 220 mq interni ed è in ottimo stato di manutenzione, frutto di una ristrutturazione curata nel 2014 con ottime finiture interne. L'esterno è caratterizzato dall'elegante facciata in mattoni faccia vista, che conferisce un aspetto signorile e duraturo. Al piano rialzato troviamo il soggiorno doppio e luminoso, il cuore della casa ideale per accogliere famiglia e amici con il massimo comfort con un ampio terrazzo, perfetto prolungamento della zona giorno, ideale per colazioni all'aperto o momenti di relax, due camere da letto e servizio. Piano Seminterrato Spaziosa Taverna Open Space, perfetta come locale hobby o zona conviviale, completata di cucina in murature e bagno. La proprietà è circondata da un'area esterna di 300 mq totali, con una parte dedicata a giardino e una parte piastrellata. Box Auto Doppio in larghezza. Nessuna Spesa Condominiale, massima autonomia gestionale garantita dall'ingresso indipendente. Questa soluzione è l'ideale per chi cerca una casa di rappresentanza, con spazi interni ed esterni di alto livello, in una posizione serena a Limbiate.



2 camere


2 bagni

220 mq


INFORMAZIONI IMMOBILE
GENERALI
Contratto Vendita
Stato Libero
Prezzo 445.000,00 €
Riferimento SULIMB
DESCRIZIONE
Tipologia Porzione di casa
Piano P1
Mq 220
Numero locali 3
Numero camere 2
Numero bagni 2
Cucina Abitabile
Stato manutenzione Ristrutturato
CLASSIFICAZIONE ENERGETICA
Classe Energetica
Prestazione energetica(EPI):
INFORMAZIONI SULLA COSTRUZIONE
Età dell'immobile 40
Piani totali edificio 1
STRUTTURA ESTERNA
Ascensori No
Cantina No
Giardino Privato
Terrazzi
Box Doppio
STRUTTURA INTERNA
Riscaldamento Autonomo a metano
Condizionatore

Contatti

Contattaci


Utilizzando questo servizio dichiari di aver letto e accettare l’informativa sulla privacy.

* Campo obbligatorio

Cerco Casa Senago


Piazza del Tricolore, 8
20030 Senago (MI)

Telefono


Tel.02/99057862
Fax.0287370048